Eladó új építésű téglalakás - Paks

Új építésű!
Új építésű
KAPCSOLAT
Görög Zoltán


+36 30 517

gorogzoltan@

Az időpont kérés naptár ikonja
IDŐPONTOT KÉREK
A visszahívás kérés telefon ikonja egy azt körbe ölelő nyíllal
VISSZAHÍVÁST KÉREK
Ajánlom egy ismerősömnek ikon
AJÁNLOM EGY ISMERŐSÖMNEK
Facebook megosztás ikon
MEGOSZTÁS

KAPCSOLATFELVÉTEL

Küldés

Az üzenetet sikeresen elküldtük!
Hiba történt!
INGATLAN ADATAI

Ingatlan jellege

téglalakás

Belső terület

75 m²

Tájolás

dél

Építési állapot

új

Építési mód

tégla

Szobák száma

3+1 félszoba

Kert

(saját kert)

Terasz

14.13 m²

Emelet

földszint.

Épület szintje

1.

Épült

2026

Akadálymentes

igen

Lift

nincs

Ingatlan állapot

kívül: új
belül: új

Klíma

van

Szigetelés

15 cm

Ablak szerkezete

3 rétegű thermoplan

Fűtés

hőszivattyús

Komfort

összkomfort

Parkolás

van önálló garázs

Kilátás

udvarra

Energetika

A+:

Az időpont kérés naptár ikonja
HTML
Az időpont kérés naptár ikonja
PDF
Eladó új építésű téglalakás
Ingatlan azonosító:
1068_gz

Tolna megye, Paks, Szent János utca

Irányár

83 M Ft
(1.11 M Ft/㎡)

Szobák

3+1 félszoba

Emelet

földszint

Terület

75 m²
INGATLAN LEÍRÁSA
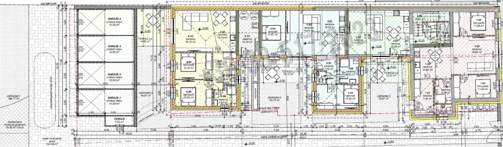
Paks, Szent János utcában három szobás, új építésű kertkapcsolatos lakás ELADÓ!

Az ingatlan egy új építésű 4 lakásos társasház 75 m2-es belső udvarra néző kertkapcsolatos lakása.
A lakást az alaprajzon látható elrendezés szerint a mai igényeknek megfelelően minőségi alapanyagokból, jó referenciával rendelkező szakemberek építik.

A lakásba a saját előkerten és teraszon át érkezünk meg az előtérbe, melyből közvetlenül elérhető az amerikai konyhás nappali, fürdőszoba és WC, továbbá az egymástól jól elkülönített két hálószoba.
A földszinten kialakított 66 m2-es lakrészhez tartozik még egy a tetőtérben kialakított bruttó 47,57 m2-es nettó 9 m2-es hasznos alapterületű helyiség, melyet az új tulajdonos igényei szerint használhat akár mint tároló, dolgozószoba, stb.
A fűtést és hűtést egy központi hőszivattyú fogja biztosítani padlófűtés és mennyezet hűtés segítségével.
Az energia hatékony gépészetnek, a 15 cm homlokzati szigetelésnek és a 3 rétegű üvegezéssel szerelt nyílászáróknak köszönhetően a lakás rezsije minimális lesz.
A kiváló elhelyezkedésnek köszönhetően minden a főutcán található szolgáltatás és a Duna part adta lehetőségek is sétáló távolságon belül elérhető.
Így ideális választás új otthonának és befektetési szándék esetén is.
Parkolás az automata kapun át megközelíthető, zárt belső udvarban lehetséges.
Továbbá zárt garázs megvásárlására is van lehetőség.
Az építkezés már folyamatban van.
Az ingatlanok tervezett átadása 2026 vége - 2027 év eleje.

Az értékesítés kezdeti szakaszában, a vevők egyedi igényeit is figyelembe tudjuk venni.

A finanszírozásban bank független, ingyenes hitel tanácsadással segítjük vevőinket.
Otthon Start programban 3%-os hitellel megvásárolható az ingatlan.

INGATLAN ADATAI

Ingatlan jellege
téglalakás
Belső terület
75 m²
Tájolás
dél
Építési állapot
új
Építési mód
tégla
Szobák száma
3+1 félszoba
Kert
(saját kert)
Terasz
14.13 m²
Emelet
földszint.
Épület szintje
1.
Épült
2026
Akadálymentes
igen
Lift
nincs
Ingatlan állapot
kívül: új
belül: új
Klíma
van
Szigetelés
15 cm
Ablak szerkezete
3 rétegű thermoplan
Fűtés
hőszivattyús
Komfort
összkomfort
Parkolás
van önálló garázs
Kilátás
udvarra
Energetika
A+:
TÉRKÉP

Tolna megye, Paks, Szent János utca

Hitelkalkulátor


KAPCSOLAT
Görög Zoltán
Görög Zoltán


+36 30 517 2623

gorogzoltan@ingatlanpaks.hu

KAPCSOLAT
Görög Zoltán

+36 30 517

gorogzoltan@

Az időpont kérés naptár ikonja
IDŐPONTOT KÉREK
A visszahívás kérés telefon ikonja egy azt körbe ölelő nyíllal
VISSZAHÍVÁST KÉREK
Ajánlom egy ismerősömnek ikon
AJÁNLOM EGY ISMERŐSÖMNEK
Facebook megosztás ikon
MEGOSZTÁS

KAPCSOLATFELVÉTEL

Küldés

Az üzenetet sikeresen elküldtük!
Hiba történt!
INGATLAN ADATAI

Ingatlan jellege

téglalakás

Belső terület

75 m²

Tájolás

dél

Építési állapot

új

Építési mód

tégla

Szobák száma

3+1 félszoba

Kert

(saját kert)

Terasz

14.13 m²

Emelet

földszint.

Épület szintje

1.

Épült

2026

Lift

nincs

Ingatlan állapot

kívül: új
belül: új

Klíma

van

Szigetelés

15 cm

Ablak szerkezete

3 rétegű thermoplan

Fűtés

hőszivattyús

Komfort

összkomfort

Parkolás

van önálló garázs

Kilátás

udvarra

Energetika

A+:

Az időpont kérés naptár ikonja
HTML
Az időpont kérés naptár ikonja
PDF
Tolna megye - Paks
Tolna megye - Paks
Tolna megye - Paks
Tolna megye - Paks
Tolna megye - Paks
Tolna megye - Paks
Tolna megye - Paks
Tolna megye - Paks
Tolna megye - Paks
Tolna megye - Paks
Tolna megye - Paks